Live/Work
Location: New Lanark, South Lanarkshire
Year: 2020/21
Ryan Woods & Isaac Stanesby
The last enquiry into housing for semester 1 tasked us with exploring the Live/Work typology through the adaptation of a chosen housing precedent (Cité Manifeste, Lacaton & Vassal, Mulhouse, France)
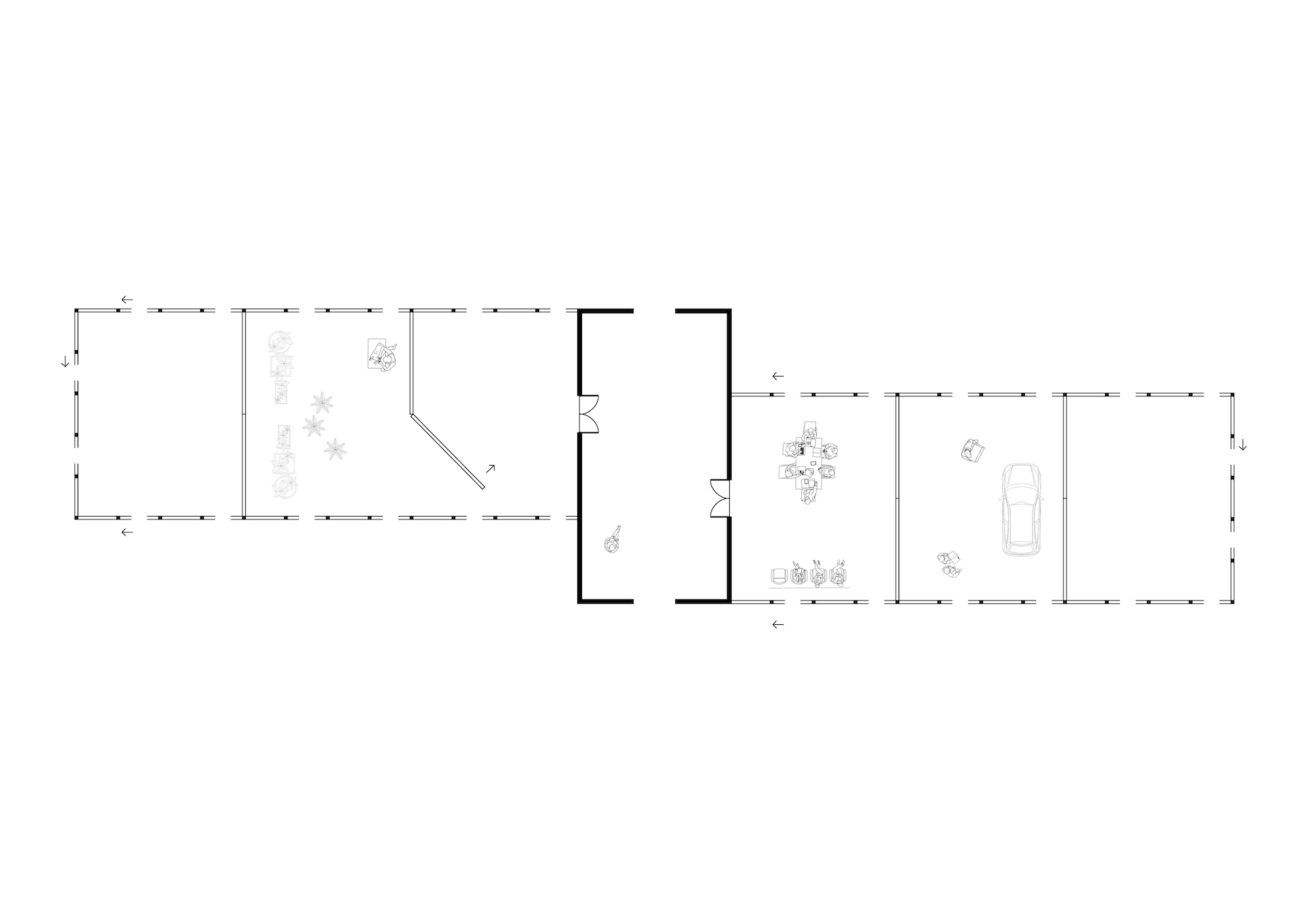
Set within the context of the New Lanark World Heritage Site, we set out to develop a circular economy hub whilst accomodating an older demographic. Intruiged by the site’s natural resources and it’s unique topography, we aimed to create a community hub that utilised the landscape as well as incoprorating the trades of these individual’s working lives.
Comprising of two sets of offset buildings connected by a ramp, the north building plays host to an adaptable work unit, whilst the south building forms the accomodation spaces, where the residents purchase a set cubic volume of space rather than a set of pre-described dwellings. Our final outcome seeked to create modern living solutions that reflected both the industrial past of Mulhouse and New Lanark.
![]()
![]()
![]()
Location: New Lanark, South Lanarkshire
Year: 2020/21
Ryan Woods & Isaac Stanesby
The last enquiry into housing for semester 1 tasked us with exploring the Live/Work typology through the adaptation of a chosen housing precedent (Cité Manifeste, Lacaton & Vassal, Mulhouse, France)
Set within the context of the New Lanark World Heritage Site, we set out to develop a circular economy hub whilst accomodating an older demographic. Intruiged by the site’s natural resources and it’s unique topography, we aimed to create a community hub that utilised the landscape as well as incoprorating the trades of these individual’s working lives.
Comprising of two sets of offset buildings connected by a ramp, the north building plays host to an adaptable work unit, whilst the south building forms the accomodation spaces, where the residents purchase a set cubic volume of space rather than a set of pre-described dwellings. Our final outcome seeked to create modern living solutions that reflected both the industrial past of Mulhouse and New Lanark.







